-
Prix :549 000 €
Honoraires inclus
525 000 € Honoraires exclus
Honoraires de 4,57% TTC à la charge de l'acquéreur
- Ville : PARIS 18
- Quartier : ORDENER
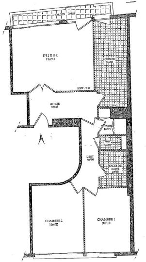
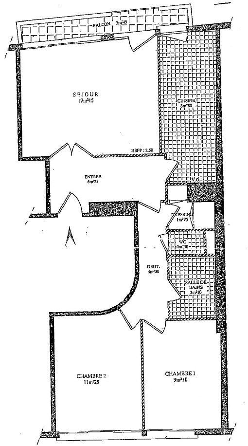
- Surface : 62.16 m²
- Nombre de pièces : 3
- Etage : 3
- Ascenseur : Oui
RUE ORDENER
Au 3ème étage par ascenseur d'un immeuble des années 1970, L'IMMOBILIERE Bernard LACOSTE vous propose cet appartement traversant 3 pièces d'une surface de 62,16 m² Loi Carrez à rénover.
L'appartement comprend une entrée, un séjour ouvrant sur un balcon et sur la rue Ordener - exposition plein Sud, une cuisine séparée avec possibilité d'ouverture sur le séjour, deux chambres ouvrant sur cour, un dressing, une salle d'eau et un wc séparé. Chauffage et eau chaude collectifs. Vue dégagée. Possibilité de créer un bel espace de vie en ouvrant sur l'entrée et la cuisine sur le séjour actuel. Cave et parking double en sous-sol. Métro Ligne 12 (Jules Joffrin ou Lamarck) à 5 minutes. Diagnostics en cours de réalisation. A visiter rapidement !!
Bien soumis au statut de la copropriété. Nombre de lots : 19. Honoraires TTC inclus à la charge de l’acquéreur : 4,57 %. Pour toute demande d’informations et organiser une visite, contactez Adrien au 06.66.76.07.23.
Les informations sur les risques auxquels ce bien est exposé sont disponibles sur : www.georisques.gouv.fr
En copropriété
: 19 lots
