-
Prix :243 000 €
Honoraires inclus
230 000 € Honoraires exclus
Honoraires de 5,65% TTC à la charge de l'acquéreur
- Ville : ST DENIS
- Quartier : SAINT-DENIS
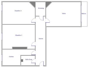
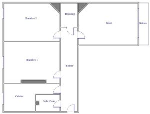
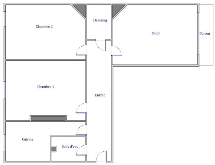
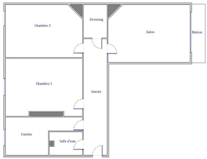
- Surface : 64.87 m²
- Nombre de pièces : 3
- Etage : 3
- Ascenseur : Non
BOULEVARD CARNOT - Au troisième étage d'un immeuble ancien sans ascenseur, L'IMMOBILIERE Bernard LACOSTE vous propose cet appartement traversant de 3 pièces d'une surface de 64,87 m² Loi Carrez vendu loué.
L'appartement comprend une entrée, un séjour ouvrant sur un balcon, une cuisine séparée, deux chambres, un dressing et une salle d'eau avec wc. Charme de l'ancien : paquet massif, cheminée, belle hauteur sous plafond. Commerces à proximité. RER D Saint-Denis à 10 minutes - Métro Basilique de Saint-Denis à 15 minutes à pied. Loyer mensuel de 850 euros hors charges - bail en date du 28/02/2021. Une cave complète l'appartement.
Bien soumis au statut de la copropriété. Nombre de lots : 22. Quote-part du budget prévisionnel annuel : 1 750,32 Euros. Honoraires TTC inclus à la charge de l’acquéreur : 5,65 %.
Pour toute demande d’informations et organiser une visite, contactez François au 06.68.76.26.90 - Agent commercial (EI) - Immatriculé au RCS de Paris sous le numéro 810 249 532
Les informations sur les risques auxquels ce bien est exposé sont disponibles sur : www.georisques.gouv.fr
En copropriété
: 22 lots
Montant moyen annuel de la quote-part de charges courantes : 1 750,32 €
Demande de renseignements
Montant estimé des dépenses annuelles d'énergie pour un usage standard :
entre 1770€ et 2450€ (ref : 2021, 2022, 2023)
